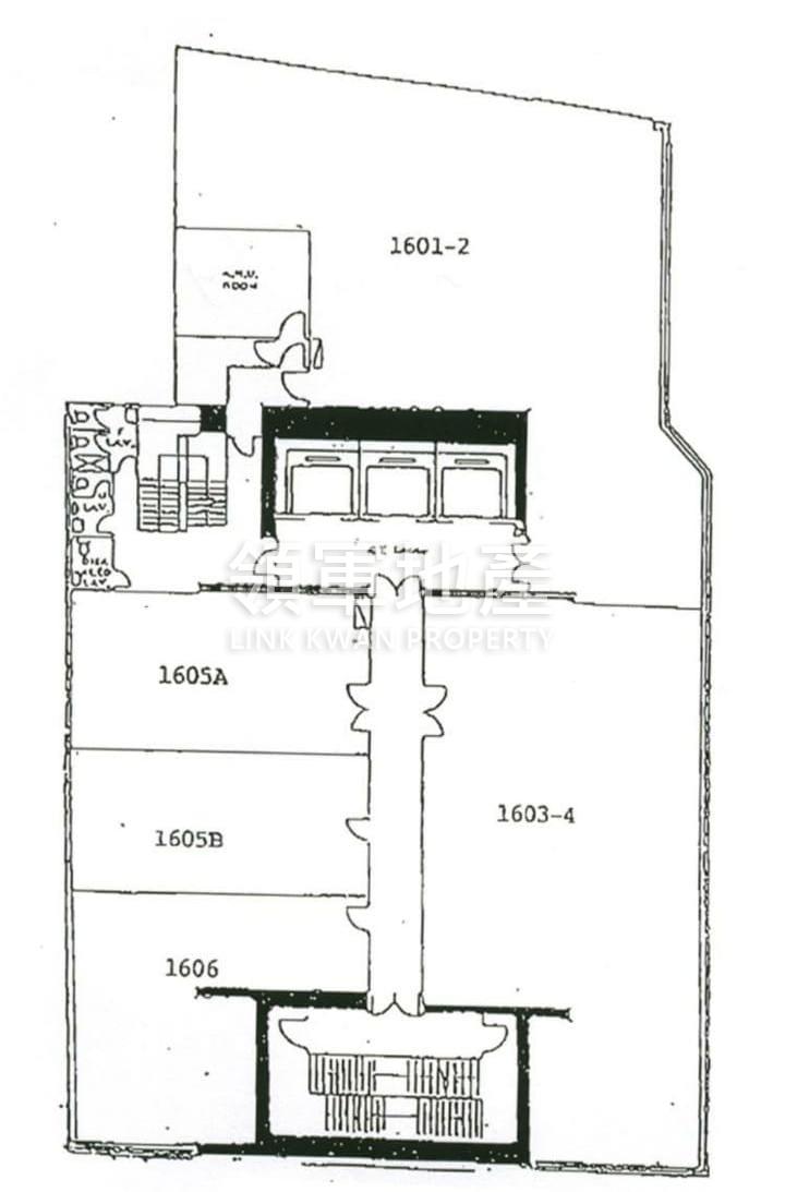
銅鑼灣廣場一期
最後更新: 2025-10-07
銅鑼灣軒尼詩道489號
編號
CWB018
地區
銅鑼灣
落成年份
1989
業權
統一
出租 0
呎租範圍
HK$33
主題行業
商業
冷氣管理費(呎價)
HK$6.1
冷氣類別
中央冷氣
冷氣時間
:
星期一至星期五 08:00 - 19:00 星期六 : 08:00 - 13:30
大廈簡介
銅鑼灣廣場一期是由商場及寫字樓組成的建築,樓高25層,位於香港香港島銅鑼灣軒尼詩道489號,地下至10樓商場有多間連鎖商店及食肆,例如屈臣氏、南北行及泉章居等。


